设备介绍:
石膏卸料机是一种用于FGD脱硫石膏料仓的物料输出设备。针对流动性差的松散石膏物料的储藏和运输,我公司设计开发了石膏卸料机。它的刮刀式下料装置可以取出料仓中用一般机械非常难取出的散装物料,包括最难处理的粉体、大团、块状固体物料。事实证明它无需人力装载,操作简便,装卸现场整洁干净,将成为FGD脱硫石膏料仓设备的主流,必将广泛运用于各个行业。
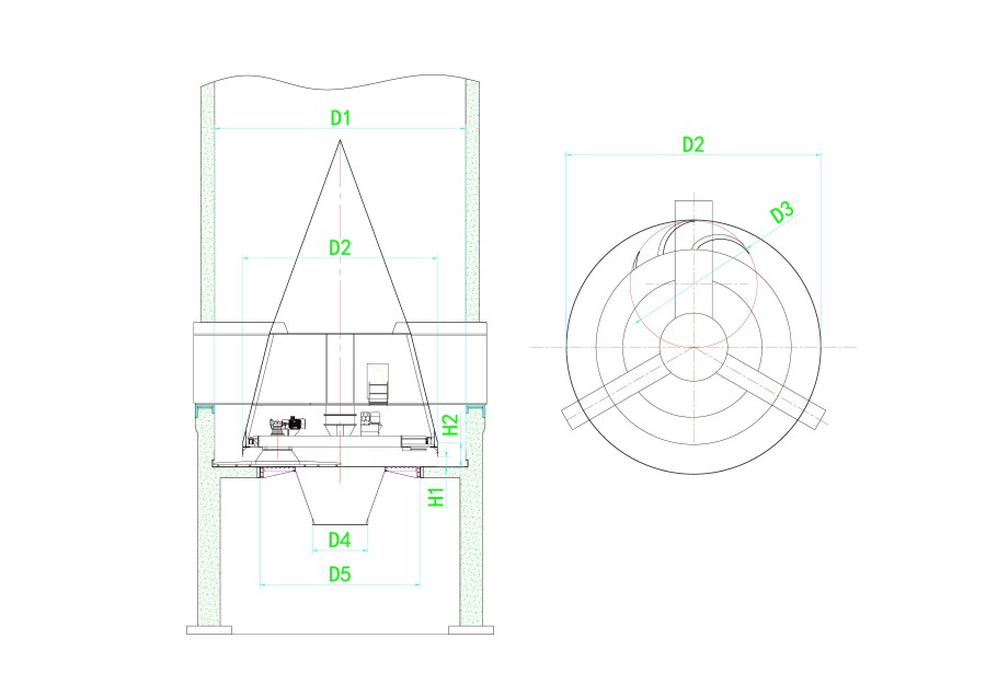
设备参数:

|
Date sheet of technical |
||||
|
Bin diameter D1(mm) |
6000 |
8000 |
10000 |
12000 |
|
Cone diameter D2 (mm) |
4200 |
6000 |
8000 |
10000 |
|
Discharge wheel diameter D3(mm) |
3500 |
4000 |
4500 |
4500 |
|
Diameter of discharge port D4(mm) |
800 |
1000 |
1200 |
1500 |
|
Inside diameter of concrete platform D5(mm) |
2500 |
4800 |
6500 |
8500 |
|
Height of discharge working area H1(mm) |
350 |
400 |
450 |
450 |
|
Height of straight section of cone H2 |
700 |
800 |
900 |
900 |
|
Discharge capacity (m³/h) |
0~150 |
0~200 |
0~300 |
0~500 |
设备原理:
设备主要由减压锥、底座(仓底)、刮料臂、中心卸料口和驱动装置构成。减压锥固定在料仓内,驱动装置通过开式齿轮传动,带动刮料臂紧贴仓底回转,不断将物料由四周刮到中心,通过卸料口卸出。
设备特点:
• 先进先出,避免物料板结。
• 均化物料,提高散状物料质量。
• 使用具有特殊形状的卸料臂,能耗低。
• 合理配置的料仓及减压锥外形,有效避免了架桥现象的产生。
• 减压锥底部与料仓底部之间的距离可调,以防止出现涌料。
• 卸料臂与仓内壁相切,杜绝卸料死角。
• 料流稳定,流量可控。
适用物料:
适用于粘度大、湿度大、易流动的松散物料。涵盖电力、冶金、化工、水泥等行业的大部分材料。如:烟气脱硫石膏、天然石膏、无水石膏、煤、炼油焦渣;石灰石、生石灰、石灰粉、石英砂、粘土、铁粉等
